UpperCrust Maslak

200.00m2

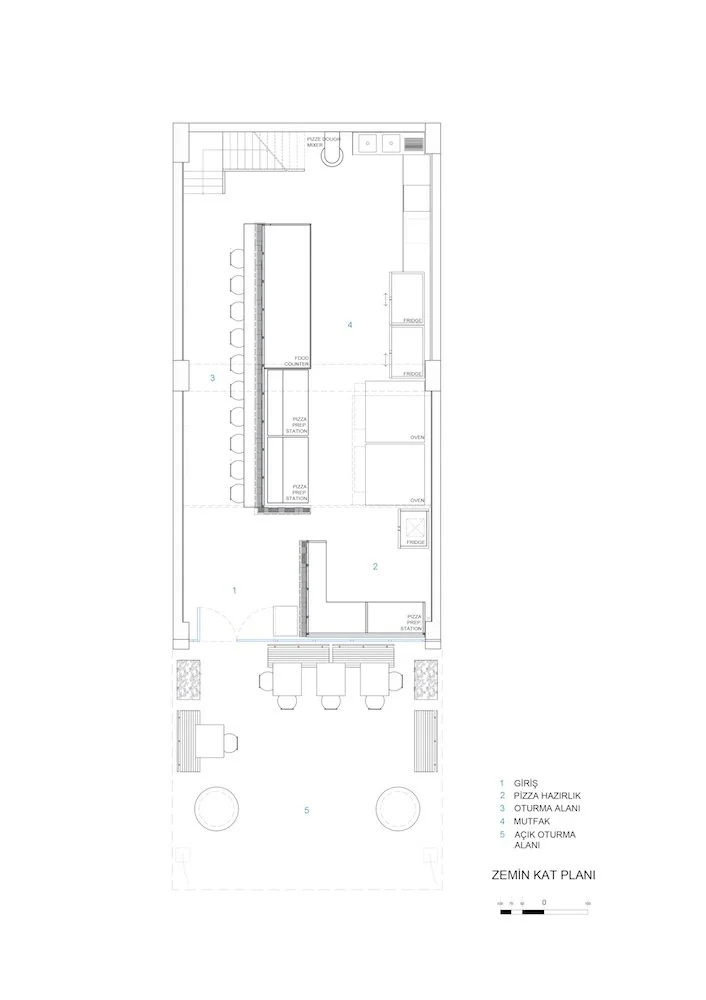
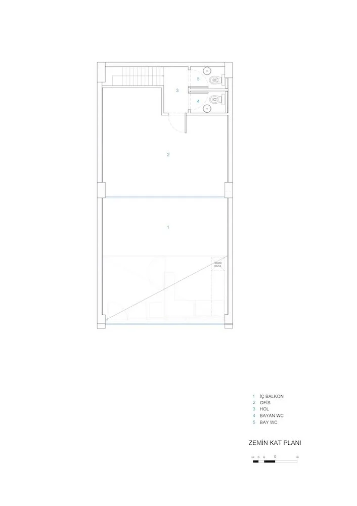
The workshop concept is preserved in The Upper Crust branch at Maslak Atatürk Auto Industry District which was built instead of an old repair shop. The interior, which is transformed with open kitchen and eating area, is created with recycled and raw materials to integrate into the ongoing design line of the industrial site. As complementary elements of the design, old materials were used in the interior and the exterior areas, such as the old pallets, they decorate the walls as panels in the eating area. The building facade was completed with used materials provided from the industrial site.

Previous
Previous

Art Valley, Ascension 64

Next
Next

Aydın Dogan Student Center