Seferihisar Villa

200.00m2

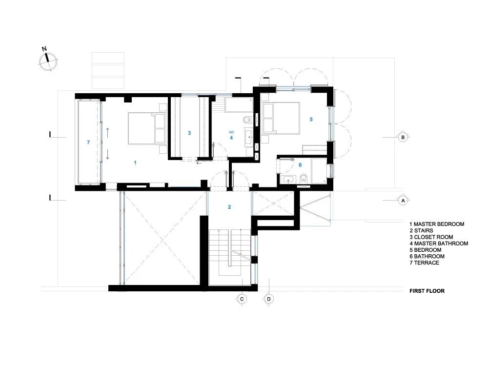
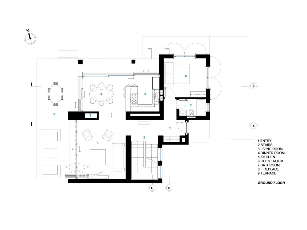
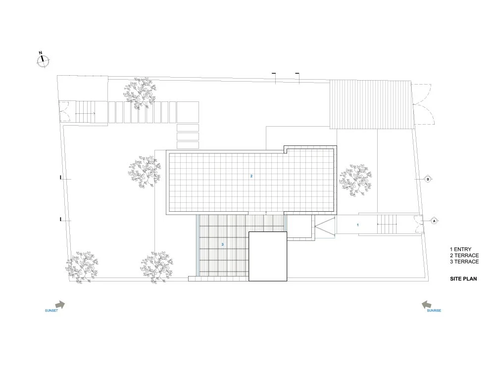
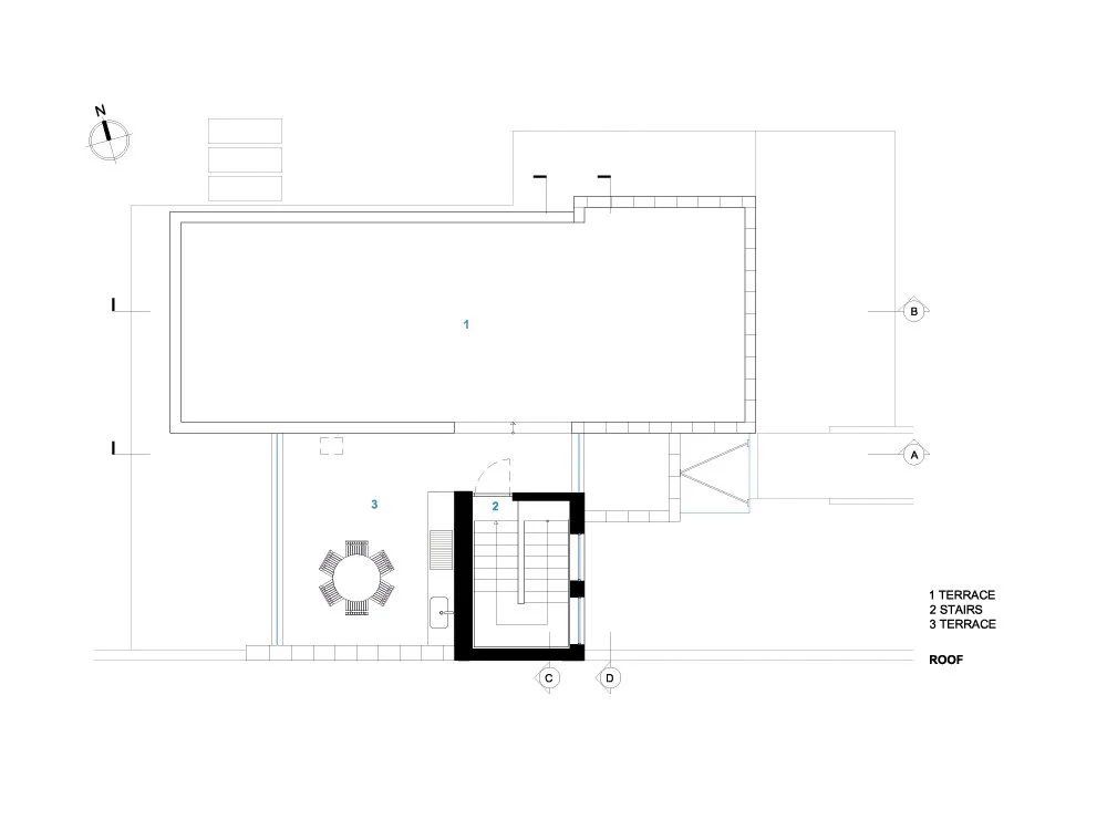
The project is a private house in Seferihisar, Izmir. The house has a compact shape over 2 floors. The ground floor accommodates day activity spaces, and on the upper floor is the night activity spaces. The living room on the ground floor opens onto a terrace and openings allow a link to the interior and the exterior. The dinner area has an open kitchen and is separated from the living area with a fireplace.

Previous
Previous

Casa MR

Next
Next

Watermark Office