Grenelle Apt. Paris

90.00m2

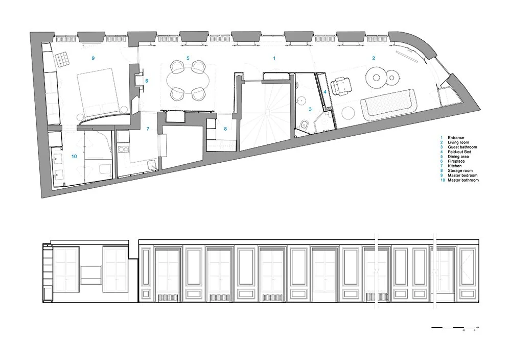
Marked by a minimalistic design with French flair, the apartment concept was created and implemented. Positioned in a trend-focused,  luxury neighbourhood, the new apartment concept leverages Saint-Germain des Pres’s iconic image. This 90 square meter dwelling, is located in the 6th district of Paris.

A dash of French flair is brought to the apartment by means of a deliberately chosen interplay between classic and modern elements. Dark wooden window frames have been layered with white lacquer panels and in doing so transported into modernity. The lacquer panelling on the exterior walls of the apartment, characterised by neo-classical lines of French architecture, is created by layering of different panels.The neo-classical details of the ornamental wall panels have been updated with the notches instead of using wooden curved strips. Layering panels allow to play with perspectives thus the creation of subtle visual illusions. Applying 45-degree cutson the edges allowed to create panels with a feeling of no thickness, like they were shaped sheets of paper hanging from the ceiling.

The typical structure of an apartment in an old building was adapted to meet the requirements of a modern style of living. The existing room doors are removed for using the space more efficiently. It enables to gain a wide-open living area which is separated with a sliding panel. An extra volume was integrated into the living area to make room for an additional fold-out bed and bathroom for the guests.  When the separation door panel is closed it creates a guest room, independent from the rest of the apartment.

The focus of the overall apartment concept lies on reduction, black and white, as well as strong contrasts in shapes and surfaces, blending edgy modern and classic elements. Materials and their surfaces play a vital role in the apartment design, often creating a multi-dimensionality.

Previous
Previous

AP Sisli

Next
Next

Gundogan Villa